
Tutvustus
Müüa 2022. aasta maikuu lõpus valmiv paarismaja boks looduslähedases kiiresti arenevas Haaslava alevikus.
Elamu
Paarismaja on ehitatud plaatvundamendile. Seinad on kergbetoonplokist, välisfassaad on kaetud halli krohviga. Siseseinad on kipspaadist koos heliisolatsiooniga. Katusekatte materjaliks kasutatakse musta valtsplekki.
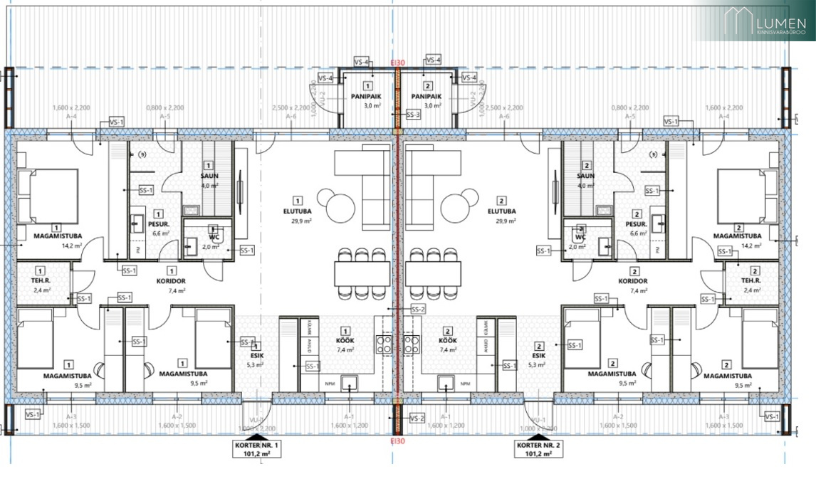
Paarismaja boks on ühekorruseline, kokku 4 tuba, pinda 101,2m2 koos tehnoruumi ja panipaigaga. Lisaks terrass 40m2 maja taga ja 12m2 maja ees. Kokku üldpinda 153,2m2.
Boksis on planeeringult esik (5,3m2), kuhu saab paigutada terve seina ulatuses garderoobikapi. Paremale jääb avar köök-elutuba (kokku 37,3m2). Vasakule tualett (2m2), pesuruum (6,6m2) koos suure saunaga (4m2). Kolm magamistuba (14, 9,5 ja 9,5m2) ja koridori lõpus tehnoruum (2,4m2).
Terrassile (40m2) pääseb kolmest ruumist: elutoast, pesuruumist ja suuremast magamistoast. Terrass on avatud hommiku ja päevasele päikesele.
Panipaik on ehitatud maja taha üheks osaks terrassist, ühtlasi on see ka vaheseinaks kahe boksi vahel.
Põrandaid katab eluruumides naturaalne puitparkett. Seinad värvitakse heledates toonides. Sanitaarruumides kaetakse seinad ja põrandad keraamiliste plaatidega. Ostjal on võimalus täpsemad materjalid ja värvid ehituse käigus kokku leppida.
Küttesüsteem
Kütteallikaks on õhk-vesi soojuspump, hoone küttesüsteem on lahendatud vesipõrandakütte baasil. Tubadesse on paigaldatud termostaadid temperatuuri reguleerimiseks.
Hea sisekliima tagamiseks on majas soojustagastusega sundventilatsioon. Vesi- ja kanalisatsioon on tsentraalsed, elektrivõimsus 3*16A.
Krunt
Krundi üldpind on 1700m2, mis jagatakse kahe boksi peale. Maja ette paigaldatakse kiviparkett. Mõlemal boksil on parkimisruumi arvestatud kuni kahele autole. Kinnistu piiratakse aiaga.
Asukoht
Paarismaja asub Tartu linna piirist ca 6 km kaugusel. Jalutuskäigu kaugusel asub ujumiskohaga Kurepalu järv. Lähimad koolid on Sillaotsa kool 6km ja Ülenurme Gümnaasium 7,5km kaugusel. Kõrvalarendusse on valminud uus lasteaeda ja peagi valmib ka vabaaja veetmiseks väljak, kus on tegevust nii lastel kui vanematel.
Lähim bussipeatus on suure tee ääres, ühendus Tartu linnaga hea. Mööda teed Tartu-Roiu poole on mugav liigelda ka mööda kergliiklusteed. Lisaks on 9min autosõidu kaugusel Vooremäe terviserajad.
Hinnakiri
Aadress | Korteri nr | Tubade arv | Elamispind (m2) | Panipaik (m2) | Terrass (m2) | Üldpind (m2) | Müügihind | Staatus |
|---|---|---|---|---|---|---|---|---|
Laane tee 15 | 1 | 4 | 101,2 | 3 | 52 | 153,2 | 189000€ | Müüdud |
Laane tee 15 | 2 | 4 | 101,2 | 3 | 52 | 153,2 | 189000€ | Müüdud |


























