
Tutvustus
Müüa 2022. aasta maikuu lõpus valmiv paarismaja boks looduslähedases kiiresti arenevas Haaslava alevikus.
Elamu
Paarismaja iseloomustab ökonoomsus ja hästi läbimõeldud planeering. Boks on ühekorruseline, kokku 4 tuba, eluruumi pinda 110,6m2. Lisaks terrass maja taga (49,1m2) ja auto varjualune (21m2). Kokku üldpinda 180,7m2.
Maja on ehitatud plaatvundamendile, mille soojustus on 300mm EPS. Väliseinad on puitkarkassist ja soojustatud 250mm villaga. Välisviimistluseks on kasutatud laudist. Hoone on lamekatusega. Lae soojapidavuse tagab 400mm puistevill. Akendeks on soojapidavad 3x pakettaknad. Soklile paigaldatud närilisi tõkestav võrk. Kõik siseseinad on väga hea heliisolatsiooni saavutamiseks soojustatud 50mm villaga.
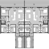
Planeering
Boksis asuvad esik eraldi garderoobiruumiga (8,3m2) ja tehnoruum (4,1m2). Esikust edasi jääb esimene tualettruum (2,4m2). Köök-elutuba on mahukas ja valgusküllane (48,9m2) vaatega maja taha. Kaks magamistuba (mõlemad 10,8m2) jäävad maja ette ja kolmas vaatega maja taha (12,2m2). Nende vahele pesuruum saunaga (kokku 10,3m2).
Terrass on L-tähe kujuline. Sinna pääseb kolmest toast: elutoast, suuremast magamistoast ja pesuruumist. Terrass on avatud päevasele ja õhtusele päikesele.
Maja ees, välisukse kõrval on panipaik (2,8m2) jalgrataste jmt hoiustamiseks.
Siseviimistlus
Boksid on viimistletud heledatesse toonidesse. Põrandaid katab eluruumides kvaliteetne tammeparkett, köök ja esik on plaaditud. WC ja pesuruumid on osaliselt plaaditud. Sauna lava katab termotöödeldud puit.
Varajastel broneerijatel on võimalik kaasa rääkida siseviimistluses.
Küttesüsteem
Kütteallikaks on maasoojuspump, mis annab ühtlasi ka sooja vee. Hea sisekliima tagamiseks on majas soojustagastusega sundventilatsioon. Vesi- ja kanalisatsioon on tsentraalsed, elektrivõimsus 3*16A.
Krunt
Krundi üldpind on 2088m2, mis jagatakse kahe boksi peale. Maja ette paigaldatakse kiviparkett. Mõlemal boksil on parkimisruumi on vähemalt kahele autole.
Asukoht
Paarismaja asub Tartu linna piirist ca 6km kaugusel. Jalutuskäigu kaugusel asub ujumiskohaga Kurepalu järv. Lähimad koolid on Sillaotsa kool 6km ja Ülenurme Gümnaasium 7,5km kaugusel. Kõrvalarendusse on valminud uus lasteaeda ja peagi valmib ka vabaaja veetmiseks mänguväljak.
Lähim bussipeatus on suure tee ääres, ühendus Tartu linnaga hea. Mööda teed Tartu-Roiu poole on mugav liigelda ka mööda kergliiklusteed. Lisaks on 9min autosõidu kaugusel Vooremäe terviserajad.
3D video
Hinnakiri
Aadress | Korteri nr | Tubade arv | Panipaik (m2) | Terrass (m2) | Ehitusalune pind (m2) | Krunt (m2) | Müügihind | Staatus |
|---|---|---|---|---|---|---|---|---|
Laane tee 12 | 1 | 4 | 2,8 | 49,1 | 180,7 | 1044 | 199000€ | Müüdud |
Laane tee 12 | 2 | 4 | 2,8 | 49,1 | 180,7 | 1044 | 199000€ | Müüdud |



























